MBAM - Pavillon 5
Musée du 21ème Siècle

Programme:
Musée
Lieu:
Canada, Montréal
Superficie:
8 000m²
Par:
Walid M’seffar
&
Thomas Buono-Guimont
Musée
Lieu:
Canada, Montréal
Superficie:
8 000m²
Par:
Walid M’seffar
&
Thomas Buono-Guimont
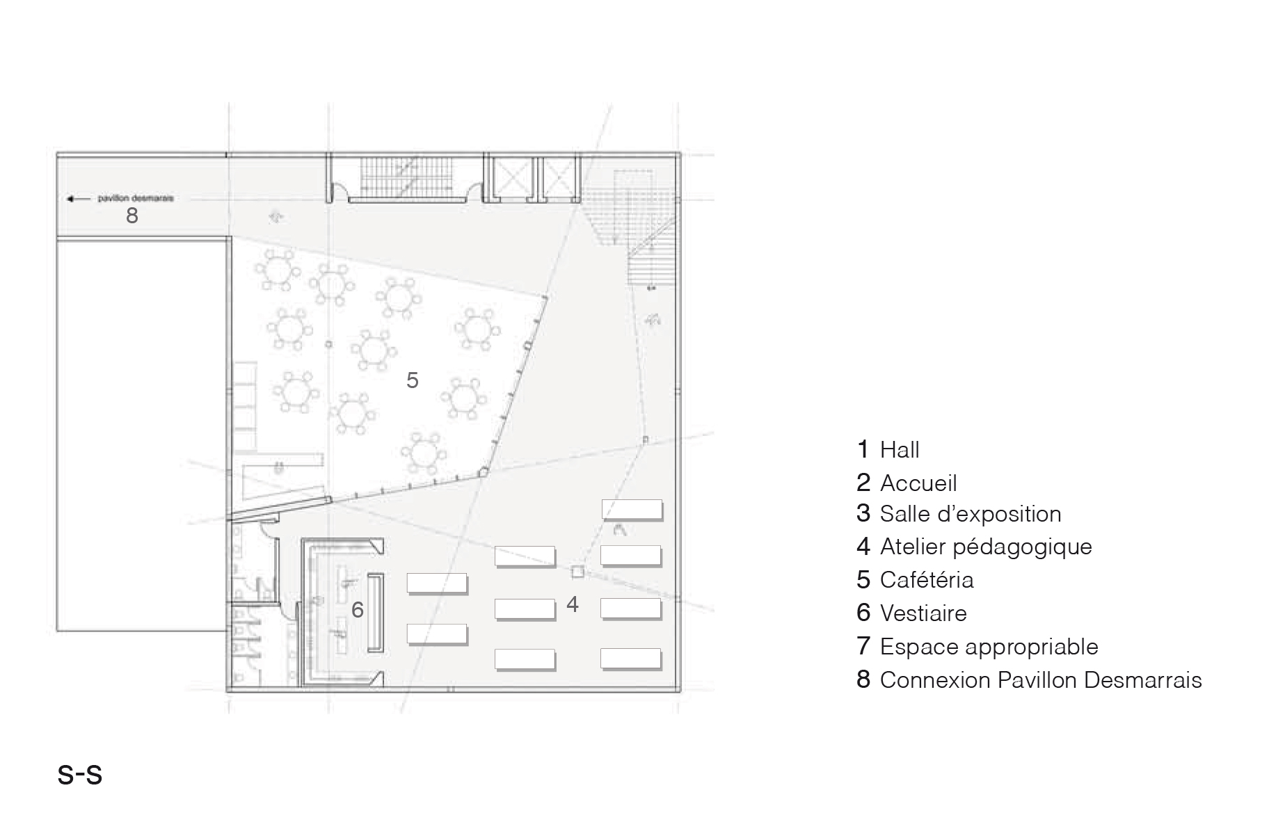
Le nouveau pavillon du musée des beaux arts de Montréal s’inscrit dans une suite d’agrandissement pour répondre aux nouveaux besoins programmatiques du musée. Dans ce cadre-là, le parti pris architectural est de positionner le bâtiment dans le 21e siècle avec une approche extravertie, interagissant avec la ville de Montréal dans laquelle il se situe. L’idée étant de sortir du schéma habituellement ferme du musée pour l’ouvrir au grand public et le connecter avec les activités quotidiennes du quartier. Aussi, on a voulu exploiter la portée pédagogique et éducative de cette nouvelle extension pour appuyer l’attractivité du musée et par conséquent celle de la ville.
Le défi principal étant de concilier entre la volonté d’ouverture et les réglementations strictes du musée en terme de protection des espaces d’exposition, un ensemble de dispositifs architecturaux ont été mis en place pour y remédier. Le mur intérieur en bois est l’un de ces dispositifs majeurs participant, à la fois, à la structure générale du bâtiment et à la division du projet en deux parties: un espace d’exposition (protégé) et un espace intermédiaire d’activités diverses. Vient par la suite le développement de la résille qui a permis de gérer les contraintes d’éblouissement et de surchauffe tout en s’intégrant, avec légèreté, dans le paysage urbain existant.


Histoire du MBAM















walid.mseffar@gmail.com Tél : +1 (514)-575-2087
© 2019 par Walid M’seffar.