VILLAGE UNITS
A modular flexible settlement
(Prepared for Buildner/kingspan Microhome competition 2024/2025)Program:
Microhome for
a young couple
Location:
Flexible
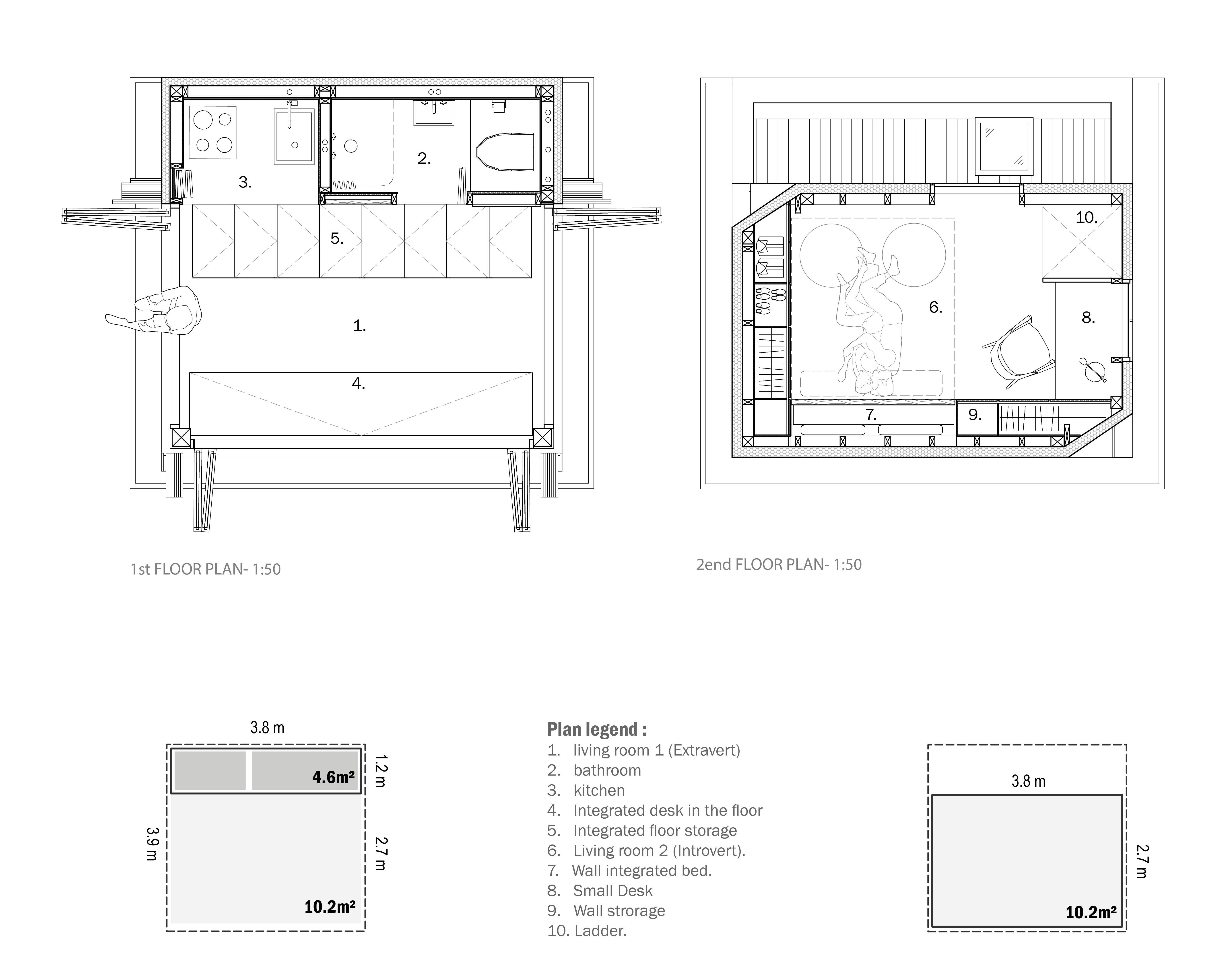
area:
25m²
By:
Walid M’seffar
Microhome for
a young couple
Location:
Flexible
area:
25m²
By:
Walid M’seffar
In the face of growing challenges such as housing shortages, land scarcity, and rapid societal transformations, young couples and individuals are increasingly in need of practical, accessible, and flexible housing solutions. Whether in urban or rural environments, the search for a place to call home requires adaptability, affordability, and inclusivity.
Village Units is an innovative architectural proposition that addresses these challenges through a system of modular, scalable units. Designed as a set of basic building blocks, this project enables the creation of a wide variety of housing typologies that respond to different needs and lifestyles.
Village Units is an innovative architectural proposition that addresses these challenges through a system of modular, scalable units. Designed as a set of basic building blocks, this project enables the creation of a wide variety of housing typologies that respond to different needs and lifestyles.
A Vision for Urban Densification and Social Inclusion:
The project contributes to the densification of the urban fabric by making underutilized spaces valuable assets in their immediate context. From rooftops to parking lots, backyards, and even natural spaces outside the city, these adaptable modules offer a dynamic and resourceful way to activate neglected areas. By enabling accessibility to central locations, Village Units fosters equal opportunities, economic affordability and inclusivity.
Flexibility and Adaptability for a Changing Society:
One of the core principles of this project is to provide solutions that adapt to everyone’s needs. The modular system offers a high degree of flexibility, allowing users the freedom to configure, expand, or relocate their living spaces as their circumstances evolve. Whether seeking community living or a more isolated retreat, Village Units supports diverse lifestyles with ease of adjustment and mobility.
The project contributes to the densification of the urban fabric by making underutilized spaces valuable assets in their immediate context. From rooftops to parking lots, backyards, and even natural spaces outside the city, these adaptable modules offer a dynamic and resourceful way to activate neglected areas. By enabling accessibility to central locations, Village Units fosters equal opportunities, economic affordability and inclusivity.
Flexibility and Adaptability for a Changing Society:
One of the core principles of this project is to provide solutions that adapt to everyone’s needs. The modular system offers a high degree of flexibility, allowing users the freedom to configure, expand, or relocate their living spaces as their circumstances evolve. Whether seeking community living or a more isolated retreat, Village Units supports diverse lifestyles with ease of adjustment and mobility.
Scalability - From Individual Homes to Thriving Communities:
Beyond individual housing, this project proposes the foundational elements of a small village. By assembling the base modules in multiple configurations, the system allows for the organic growth of a community that can scale from a few units to an entire neighborhood. The ability to generate different typologies ensures that the architecture remains responsive to changing demands and future expansions.
A New Way to Build and Live:
Village Units is more than just a housing concept—it is a framework for rethinking how we inhabit spaces in an era of transformation. By leveraging modularity, adaptability, and strategic urban activation, this project paves the way for a more sustainable, inclusive, and resilient built environment.
Beyond individual housing, this project proposes the foundational elements of a small village. By assembling the base modules in multiple configurations, the system allows for the organic growth of a community that can scale from a few units to an entire neighborhood. The ability to generate different typologies ensures that the architecture remains responsive to changing demands and future expansions.
A New Way to Build and Live:
Village Units is more than just a housing concept—it is a framework for rethinking how we inhabit spaces in an era of transformation. By leveraging modularity, adaptability, and strategic urban activation, this project paves the way for a more sustainable, inclusive, and resilient built environment.







à

















walid.mseffar@gmail.com Tél : +1 (514)-575-2087
© 2019 par Walid M’seffar.